VIVIENDAS EN EL CASCO ANTIGUO
Cliente: Privado
Dirección: San Adrián (Navarra)
Año: 2020
El proyecto
El proyecto para el nuevo edificio en la Plaza La Constitución de San Adrián representa una fusión de modernidad y respeto por la esencia histórica de la localidad. La visión detrás de este diseño innovador surge de la unión de dos parcelas colindantes, marcando el inicio de una nueva era arquitectónica tras el derribo de las edificaciones existentes.
Características Principales:
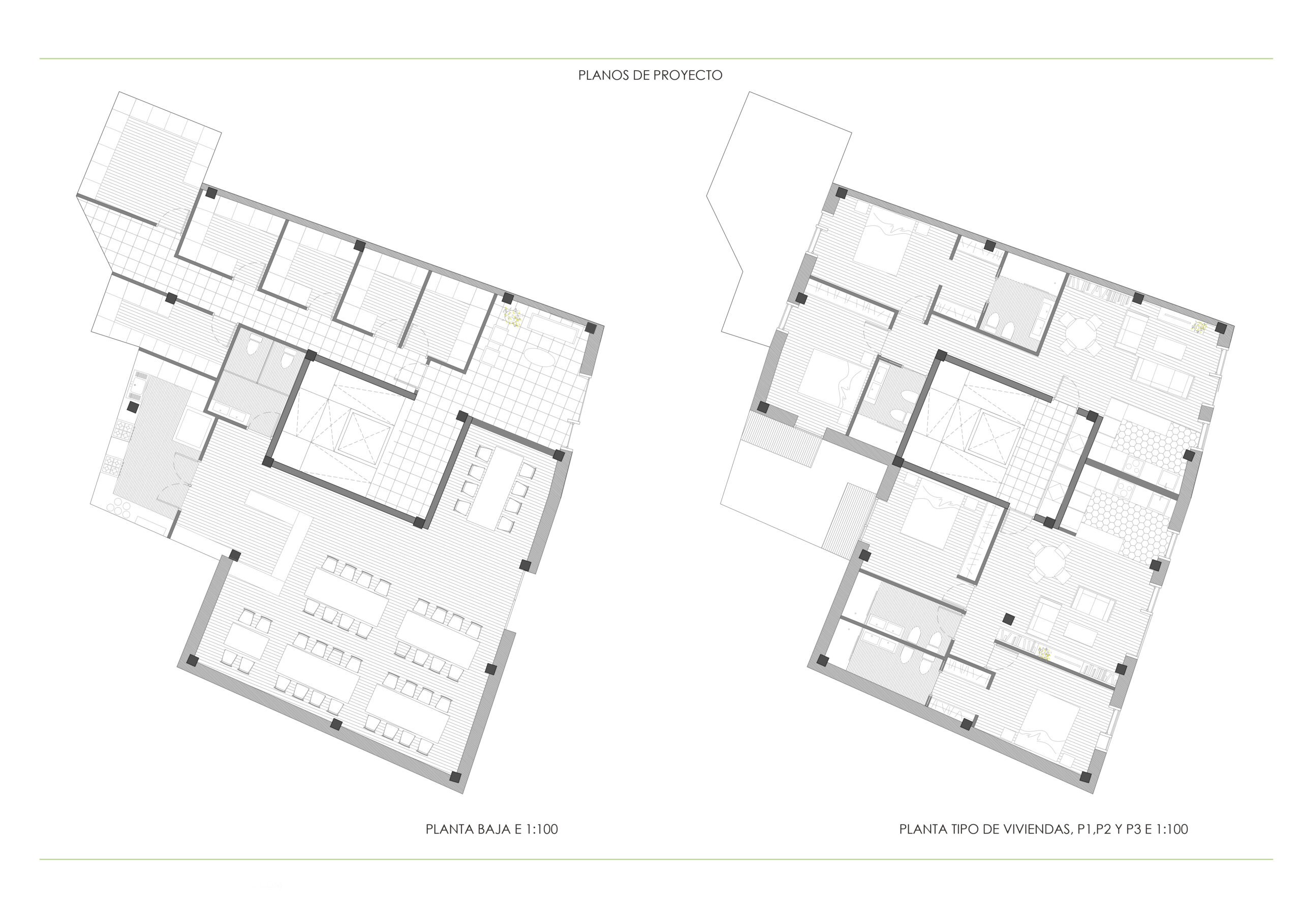
Distribución Mejorada: El nuevo edificio respeta los metros actuales de la sociedad gastronómica existente, pero los traslada a una nueva edificación con una distribución mejorada. Un espacio específico se reserva para la cocina y aseos, permitiendo así un área más amplia y libre para su disfrute.
Funcionalidad en Planta Baja: En la planta baja, se ubican tanto el portal como trasteros, asignando uno por cada vivienda para un máximo aprovechamiento del espacio. Este nivel sirve como punto de partida funcional para los residentes y visitantes.
Viviendas Eficientes: El edificio alberga tres plantas de viviendas, con dos unidades por planta, totalizando seis. Cada vivienda se diseñó bajo el estándar Passivhaus, priorizando confort, higiene y eficiencia energética. Esta elección garantiza parámetros de confort y ahorros energéticos notables, ofreciendo un valor adicional a los futuros residentes.
Diseño Espacial Innovador: Cada vivienda presenta un diseño que maximiza el uso del espacio. La ausencia de pasillos innecesarios contribuye a que toda la superficie sea aprovechada como espacio útil. El salón-cocina, el dormitorio principal con vestidor y baño privado, así como el dormitorio doble con terraza y baño completo, se distribuyen estratégicamente para brindar comodidad y funcionalidad.
Integración en el Casco Antiguo: Los materiales y acabados se seleccionan cuidadosamente para integrarse con armonía en el casco antiguo de la localidad. Revestimientos rugosos y huecos verticales dan forma a una arquitectura nueva que no solo respeta, sino que también enriquece la identidad de la manzana.
Proyectos Relacionados
¡Construyamos algo juntos!
Dirección
Paseo Menendez Pelayo, 39006 Santander. Cantabria
Pelayo Sola 6, 31570 San Adrián. Navarra
Teléfono

