INSTALACIÓN DE ASCENSOR Y ELIMINACIÓN DE BARRERAS ARQUITECTÓNICAS
Cliente: Privado
Dirección: San Adrián (Navarra)
Año: 2023
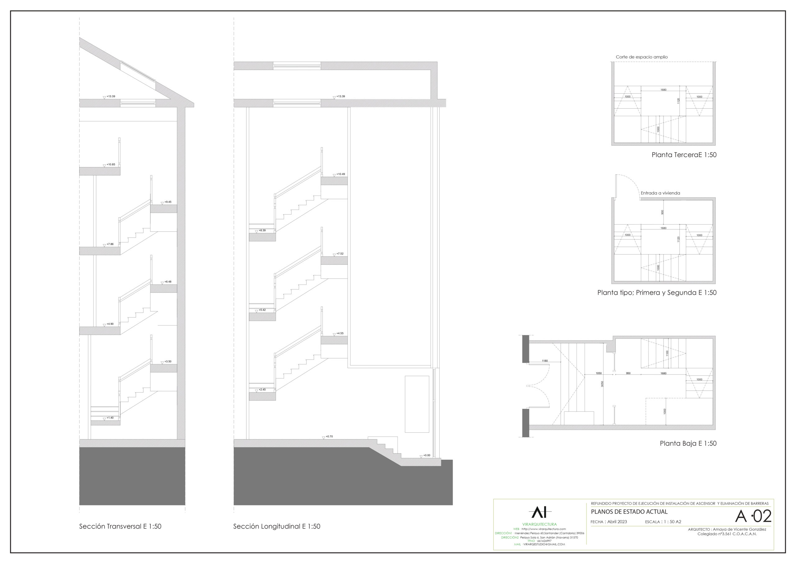
Este proyecto se centra en la instalación de un ascensor y la eliminación de barreras arquitectónicas en una comunidad de vecinos, una obra que cuenta con el respaldo de una subvención por parte del Gobierno de Navarra. La instalación del ascensor se lleva a cabo aprovechando el hueco de la escalera existente, sin necesidad de derribarla, lo que permite maximizar la eficiencia del espacio.
El ascensor está diseñado con una estructura de acero en planchas finas para ocupar el mínimo espacio posible en el hueco de la escalera. El paramento del ascensor se compone de vidrio translúcido, permitiendo que la luz se difunda a lo largo de todo el núcleo y facilitando la ventilación. Dada la limitada iluminación cenital proveniente del lucernario de cubierta, que también experimenta modificaciones, la elección del vidrio translúcido asegura una distribución uniforme de la luz natural.
La estética del ascensor se caracteriza por detalles en acero y vidrio translúcido, creando una apariencia moderna y elegante. Además, se prevé la instalación de una plataforma elevadora para el primer tramo de escaleras, asegurando la accesibilidad para todos los residentes.
Importante destacar que, a pesar de las modificaciones significativas en el núcleo del ascensor, el resto del portal y las escaleras permanecen sin alteraciones, respetando la esencia original del edificio.
Este proyecto no solo busca mejorar la accesibilidad en la comunidad de vecinos, sino que también se esfuerza por incorporar elementos estéticos y funcionales que enriquecen la experiencia de los residentes. La combinación de acero y vidrio translúcido refleja un enfoque contemporáneo y eficiente en la resolución de barreras arquitectónicas, manteniendo al mismo tiempo la identidad del edificio.
Proyectos Relacionados
¡Construyamos algo juntos!
Dirección
Paseo Menendez Pelayo, 39006 Santander. Cantabria
Pelayo Sola 6, 31570 San Adrián. Navarra
Teléfono

